Descrizione
In vendita a Riaz: Magnifico appartamento di 5.5 locali al 2° piano
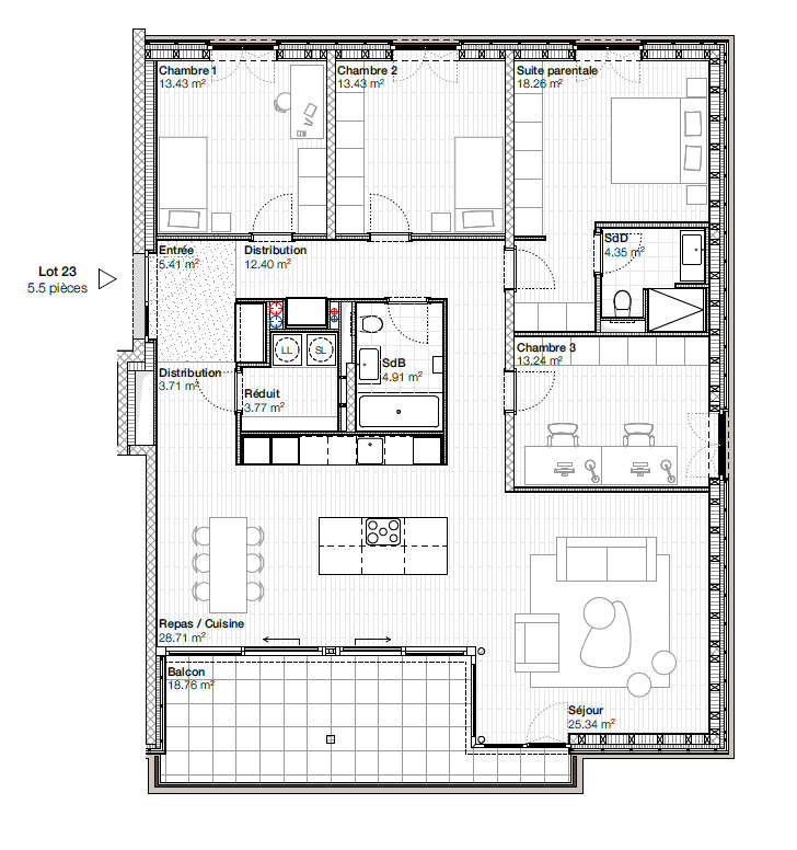
L'appartamento è composto da:
Ingresso/atrio
Ridotto
Bagno (4.91 m2)
Cucina/sala da pranzo (28.71 m2)
Soggiorno (25.34 m2)
3 camere da letto (13.43 m2 / 13.43 m2 / 13.24 m2)
1 camera da letto principale con bagno (18.26 m2 / 4.35 m2)
Balcone (18.76 m2)
Cantina (7.86 m2)
L'appartamento è composto da:
Ingresso/atrio
Ridotto
Bagno (4.91 m2)
Cucina/sala da pranzo (28.71 m2)
Soggiorno (25.34 m2)
3 camere da letto (13.43 m2 / 13.43 m2 / 13.24 m2)
1 camera da letto principale con bagno (18.26 m2 / 4.35 m2)
Balcone (18.76 m2)
Cantina (7.86 m2)
Con i suoi soffitti mansardati, questo appartamento unisce fascino e intimità, creando un vero e proprio nido di benessere.
Un parcheggio sotterraneo completa questo progetto. Il prezzo è di CHF 35’000.- l'unità.
Consegna: aprile 2027 circa
Budget per i sanitari
Budget: CHF 12’500.00 TTC
Accessori per la cucina
Budget: CHF 25’000.00 TTC
Piastrelle e ceramiche
Budget per la fornitura al m2: CHF 60.00 TTC
Parquet e pavimenti in legno
Budget per la fornitura al m2: CHF 85.00 TTC
Comodità
Dintorni
- Centro città
- Villaggio
- Parcheggio pubblico
- Verdeggiante
- Montagne
- Negozi
- Strada commerciale
- Banca
- Posta
- Ristorante(i)
- Farmacia
- Fermata Bus
- Entrata/uscita autostrada
- Bambini benvenuti
- Parco giochi
- Asilo/nido
- Scuola materna
- Scuola primaria
- Maneggio
- Sentieri per escursioni
- Pista ciclabile
- Ospedale / Clinica
- Dottore
Esterno
- Balcone/i
- Terrazza/e
- Giardino
- Uso esclusivo del giardino
- Giardino condominiale
- Calmo/tranquillo
- Vegetazione
- Capannone
- Garage
Interno
- Ascensore
- Garage
- Parcheggio sotterraneo
- Parcheggio per visitatori
- Cucina aperta
- WC separati
- WC ospiti
- Dispensa
- Cantina
- Locale bicicletta
- Sgabuzzino
- Non ammobiliato
- Armadio a muro
- Invetriatura tripla
- Luminoso
Dotazione
- Cucina attrezzata
- Piano cottura
- Vetroceramica
- Forno
- Frigorifero
- Congelatore
- Lavastoviglie
- Connessioni per la colonna lava-asciuga
- Doccia
- Vasca da bagno
- Pannelli fotovoltaici
- Connessione internet
- Persiane avvolgibili
- Terminale per auto elettriche
- Citofono
- Portiere
Pavimento
- A scelta
Stato
- Nuovo
Luce del sole
- Ottimale
Distanze
Trasporti pubblici
108 m
4'
4'
2'
Scuola primaria
300 m
6'
6'
3'
Negozi
928 m
17'
9'
4'
Ristoranti
238 m
5'
5'
2'




